「富谷洋介建築設計」様の設計・監理の札幌市中央区S様邸では、鉄骨階段の取り付けを行いました。


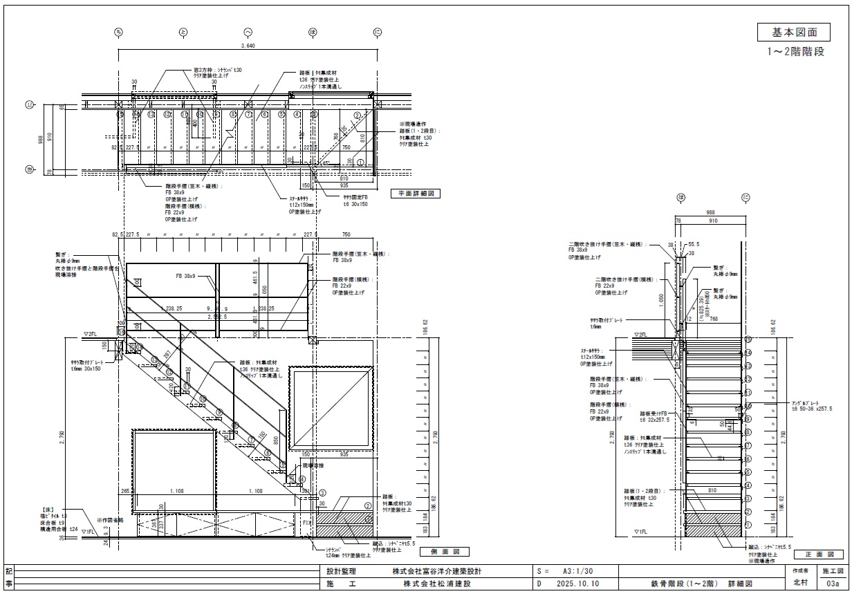
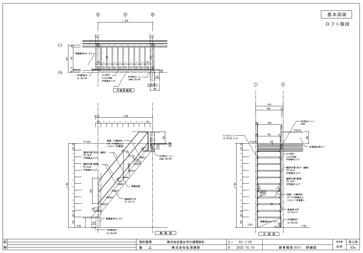
S様邸の階段は2か所あって、1~2階への階段と、2階~ロフトへの階段です。 鉄骨階段を施工管理するために、私の場合は、まず施工図を作成します。 その後、設計監理者の承認を取り、ファブリケーター(通称:ファブ。実際に鉄骨工事の施工をする業者)へ渡します。
住宅建築というのは、現場管理者の個性の出る職業だと感じる場面です。 私は図面を自分でしっかり書き、現場では施工をあまりしないというタイプですね。(私と真逆に、図面は外注の図面屋さんに書いてもらい、作業着を着て、現場施工を職人さん達と一緒に行う方もいらっしゃいます。 もちろん図面も書かなく、現場施工もしない方もいて、それぞれの個性を生かせる職業だと思います)

私の場合は、しっかりとした図面(細かい指示が記載されているので、現場に来る前に把握できるため)があれば、施工も大変スムーズです。 私の施工図は、①納まりがきれいな階段にする事。 ②施工がしやすい事。 を考慮して作図しています。

2階への鉄骨が組み終わりました。 階段を上るときにかかる力を階段下収納のカウンターで受けずに、剛床まで力をかけるような計画にしました。

階段をのぼり、二階部分には吹き抜けの手摺があり、これも鉄骨です。 デザインと取付固定が、ちょうどよいバランスになるように、設計者と施工者の両方の立場から考え、計画しました。(手間をかければ施工が難しくなり、仕上がりも悪くなります。 簡単に施工できるようにすれば、デザイン性が悪くなる場合も多く、両方からの目線で、事前協議を行い、決定しました)

2階からロフトへの階段です。 やっぱり鉄骨階段の写真は、真横からとると、カッコいいですね! この後は、集成材の階段踏板を設置して、完成になります。現場管理は、各項目の頭文字をとって「Q・C・D・S・E」と言われます。 すべてをしっかりと行う事が重要ですが、全部同時に行うのは、かなり難しいです。 建築業界で働く人は、みなさんはご存じかもしれませんが、実は頭文字の左側から順に施工管理をします。 つまり「Q]管理を一番に行います。 その「Q」とは? Q:quality(クオリティー:品質)です。 技術者の心得ですね。
私の場合は、施工図を書くことにより、この「Q」を追求しています。 もちろん、この通りに現場が施工できているかを、「現場で現物を見て現実を確認」の三現主義で施工管理しています!
(ちなみに、次の「C」は、コスト:原価管理です。 利益を残す仕事なので、会社にとって、とても重要な項目ですが、建設業の最も大切な事は、品質第一というのが、私はとても誇らしいです。)

設計・監理→「富谷洋介建築設計」様のHP
個別現場レポート→「札幌市中央区S様邸」